torstai 30. marraskuuta 2017

Laattaviidakossa

Rautakauppojen kiertely alkoi viikonloppuna! Tuli vähän dejavu, kun tosiaan kahdeksan vuotta sitten käytiin näissä vastaavasti remontoinnin merkeissä. Silloin ei kyllä laattoja katseltu, kun ei kylppäriremonttia tehty. 



Meillä on melko tarkasti selvillä, minkä tyylisiä laatoituksia ollaan hakemassa. Budjettiin laatoille laskimme keskihinnaksi 35 eur/m2, eli kun jotakin laattoja saa edullisemmin, voi johonkin laittaa kalliimpaa. Nyt on laskettu myös pohjapiirroksesta laatoitettavien alueiden pinta-alat. Niinpä jos sopivia tarjouksia tulee vastaan, voidaan alkaa haalimaan tarvikkeita valmiiksi!

Eteisen lattiaan laitetaan suurta murretun sävyistä vaaleanharmaata laattaa. Kylpytiloihin tulee pienempää vaaleanharmaata, seiniin kiiltopintaista valkoista ja hieman lainekuvioin koristettua valkoista laattaa. Suihkuseinään laitetaana pari pystyraitaa jotakin kaunista jokikiveä tai kiveä joka tapauksessa. Saunan muuriseinälle myös kiveä, varmaan melko tummaa. Vessaan haluaisin yhdelle seinälle mosaaiikkilaattaa. Sävyt vessassakin tulee olemaan hyvin luonnollisia, mutta beigesävyisiä.








 




Lopuksi vielä katsastettiin pihavalovalikoimaa. Itseasiassa hankittiin jo noita harmaita Airamin Kallio pihavaloja.




sunnuntai 26. marraskuuta 2017

Talviraksan puuhia

Seuraava ohjelmanumero alkaa olla valmistautuminen hirsitoimituksen saapumiseen, johon on pari kuukautta aikaa. Pystytysporukka on tiedossa ja nyt aletaan hankkia rakennustelineitä ja muita tykötarpeita valmiiksi. Rakennuttajahan on vastuussa työväkensä turvallisuudesta, joten rakennustelineet ja muut asianmukaiset turvavälineet on rakennuttajan huolehdittava työmaalle. Katto ja sisäkatto tehdään samaan syssyyn sitten. Lattian valaminen ja lattialämmityksen asentaminen tehdään vasta, kun kehikko on jo pystyssä. Harmi, kun eristyksiä ja putkituksia ei ehditä laittaa ennen pystytystä. Olisi ollut hyvä, kun olisivat olleet valmiina.

Onneksi säitä on riittänyt vielä tähän asti tehdä tontin tasoituksia. Suodatinkangas ehdittiin laittaa lähes koko terassialueelle, pikku pätkä on vielä laittamatta. Kunpa saataisiin tehtyä talon ympäryksien tasoitukset loppuun vielä jonain suojasäärupeamana, vähemmän hommaa jäisi keväälle! 

Talviraksan tulevia töitä onkin: pihan tasoitukset loppuun, sisätäytön tasaus (putkitukset ja eristelevyt), likavesiputkiojat, sähköliittymän kytkeminen ja maalämpökaivon poraus. Suunnittelurintamalla sähkösuunnitelmien teko. Jollakin konstilla on tuota kalliota vähän jyrsittävä pois, lienee timanttileikkurilla leikkaaminen on ratkaisu tässä tapauksessa. Alla kuvassa viimeiset routaeristeiden laitot vesijohdon päälle, nyt on jo ummessa tuo näkymä.





sunnuntai 19. marraskuuta 2017

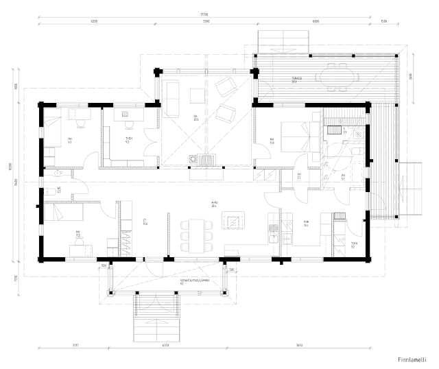
Pohjapiirrustus

Pohjapiirrustus tuntuu edelleen aivan täydelliseltä! Pidän tuosta erkkeristä ikkunoineen jo hurjasti. Terassille johtava takaovi päätettiin pitää lasisena alas saakka, eli ilta-aurinko loimottaa siitä sitten. Voin kuvitella, miten istun tuossa nurkkauksessa lukemassa kirjaa katsoen välillä ilta-aurinkoa.
Tähän pohjakuvaan tuli lennosta muutama muutos. Terassin leveämpää sivua päätettiin jatkaa puolisen metriä aurinkoterassiksi, joka ei siis ole katettua. Myös kaiteisiin tuli muutoksia. Leveämpi porrastus jatkuu takapihalle, kun ulkoilu ja oleskelupihan käyttö keskittyy tuolle alueelle. 

Keittiön saareke on leveämpi kuin kuvassa, jotta uunipellinkin mahtuu nostamaan keittotason viereen. Takan taakse ei tule muurattua seinänpätkää, sillä takassa on leivinuuni toisella puolella. Tikkaat katolle siirtyivät talon oikealle sivulle, jotta niitä pitkin pääsee myös terassin katolle. Niinpä toinen följari vasemmalla siirrettiin myös näkyviin. Teknisen tilan oven kätisyys on vaihdettu, jotta tilan säästämiseksi ovi aukeaa ulospäin huoneesta - on nimittäin melkoista tunkua teknisessä tilassa. Vaan eiköhän kaikki aparaatit sinne sulassa sovussa mahdu.

En malttaisi odottaa, että talo nousee harjakorkeuteensa. Reilut pari kuukautta on nyt aikaa hirsitoimitukseen. Tylsää toki ei ole tälläkään välillä, vaan tontilla on puuhaa. Kerron myöhemmin sähkösuunnitelmasta, jolle on suotu jo muutama ajatus. Nyt mietitään seinään tulevien ulkovalojen ja pistorasioiden paikkoja sekä pistorasioiden sijainteja talossa.

Jossakin kirjoitettiin kerran, että talon rakentaminen on perheen suurin ponnistus, mitä oikeastaan voi edes olla. Niin se varmaan on! Kunhan urakan ajattelee palasissa ja muistaa pitää raksattomia päiviä välissä, niin eiköhän tästä lopulta valmista tule! On myös hauskaa, että rakentamisen myötä jo tässä vaiheessa on tutustunut mukaviin ihmisiin ja töiden ohessa raksalla on käyty syvällisiä keskusteluja ja toisaalta tilannehuumoriakin löytyy, kun kaatosateessa yritetään väsätä jotakin. :)

tiistai 14. marraskuuta 2017

Operaatio vesiputki

Kaivoon saatiin ennen pakkasia viimeiset renkaat paikoilleen ja vesijohto-ojan peittäminen on käynnissä. Meillä on kaivolta kotiin aika pitkälti, mutta tärkeintä on, että saatiin tehtyä rengaskaivo. Kaivon kansi on vielä väliaikainen, lopullinen kansi on ollut työstettävänä. Siihen on kiinnitetty erinäisiä lenkkejä tulevan vesipumpun ripustukseen ja rakennettu huoltokannelle lukitus.


Kaivon ympärille laitettiin puhdasta kaivohiekkaa. Kaivonympärys on routaeristetty ja renkaita vasten pystyyn laitettiin vielä metrin verran suikaleita. Toiseksi ylimpään kaivonrenkaaseen on tehty reikä sähköjohtoa varten.

Vesijohto-ojaa täyttäessä on tärkeää katsoa, ettei isoja kiviä jää putken viereen. Ne voisivat vahingoittaa putkea routiessaan. Putken päälle laitetaan ojaan koko matkalle kaksi kerrosta Styroplast pro Routa -eristettä. Sähköjohto pötköttelee ojassa suojaputkessaan routaeristeiden päällä. Suojaputkissa oli valmiina vetonaru. Kaapelikela asennettiin tuollaisen sokkelimuotin yläosan tuentaan käytetyn "tikapuun" päälle pyörimään toiseen päähän käyttämällä rimaa akselina. Aika painava oli kaapelikela, ainakin 150 metrin kela tuollaista voimavirtakaapelia.


Mitäpä muuta marraskuiselle raksalle kuuluu? Suodatinkankaat ehdittiin laittaa kiertämään sokkelia, terassin alueella kankaan laitto on kesken. Jos säitä riittää, tehdään se valmiiksi ennen talvea. Nyt on taas ollutkin ihan sula maa. Sisätäytön päältä on viimeisetkin puiden lehdet kerätty. Sepelitäyttö on tasoitettu ja tärytetty tiiviiksi sokkelin viereltä. Tärytystä ei voitu tehdä ennen kuin betoni oli kuivunut riittävästi. 





Kaivonrenkaaseen tuli läpiviennit 75 HT viemäriputkella ja 40 millimetrin paineputket ovat niiden sisässä. Putken pään kohta on tiivistetty Meltexiltä löytyneellä kumitiivisteellä, tosi näppärä oli asentaa ja panta kuului pakettiin mukaan. Se oli tarkoitettu valmiiksi eristettyjen putkien päähän, mutta toimii se tässäkin. Paineputkia menee kaivolle kaksi, toinen on varaputkena. 



Tähän alakuvan kallioon tyssäsi jätevesiputkiojan kaivaminen. Nyt on pohdinnassa miten edetään. Tehtiin harjateräksestä parimetrinen päästä teroitettu tanko, jota iskettiin maahan eri kohtiin. Toiveena oli, että löytyisi edes saostuskaivoille paikat. Tutkittiin asiaa näin, ettei tarvitsisi ihan joka paikasta koekaivaa. Kovin on vaihtelevaa kallion pinta. Ehkä putkilinjat on koetettava raivata sinne, minne saostuskaivot löytävät paikkansa. Tähän asti maatöissä kalliolta onkin ihmeen kaupalla vältytty! 

keskiviikko 8. marraskuuta 2017

Kodille sydän

Yhteistyössä Jyväskylän Puustellin kanssa

Viime perjantaina Jyväskylän Puustellissa ovella oli vastassa keittiösuunnittelijamme Ville Pohjonen. Hänen kanssaan viimeistelimme aiemmin aloitetut suunnitelmat -  ja voi miten hyvät niistä tuli! Ville on käytännönläheinen suunnittelija ja osaa hyvin huomioida lapsiperheen tarpeet toimivalle keittiölle. Hän ottaa huomioon niin kätevän jääkaapin sijoittelun kuin muropaketin säilytyspaikankin. Ville ehdottaa ratkaisuja kuunnellen tarkasti omia toiveita ja visioita. Pari kertaa kävimme jo aiemmin lasten kanssa pohtimassa näitä keittiöasioita ja Villeltä löytyi lapsille pakastimesta jäätelötkin ja leikkipaikalla oli hyvät valikoimat leluja, että malttoivat odottaa.


Päädyimme valitsemaan Puustellin keittiön hyvän laadun vuoksi. Suurimmalla osalla Puustellin kalusteista on M1-päästöluokitus, eli tuotteissa ei ole käytetty liimoja, joihin on lisätty formaldehydiä eikä valmistusprosessissa käytetä raskasmetalleja. Puuovien pintakäsittely tehdään vesiohenteisilla petseillä, lakoilla ja luonnonöljyillä. Niinpä ei tarvitse olla huolissaan hajuhaitoista, joita uusissa kalusteissa voi olla. 

Jyväskylän Puustellissa mallikeittiöitä on moneen makuun. Mallikeittiöt oli uusittu juuri kun käytiin vuoden alussa ensimmäistä kertaa katsomassa. Tuntumaa saakin siihen, miltä omat valinnat kaapeiksi tuntuvat käytännössä ja materiaaleja pääsee hypistelemään. Tiesimme haluavamme valkoisen keittiön ja ovimalliksi valitsimme kauniin valkoisen koivupeilioven. Kodinkoneiden valinta on vielä vaiheessa, paikat nyt on selvillä. Jos jotakin yksityiskohtia haluaa vielä tilauksen teon jälkeen muuttaa, on se mahdollista. On tässä kuitenkin vielä vuosi aikaa sovittuun toimitusaikaan. 

Kaappien rungot toimitetaan valmiiksi kasattuina ja sisäänkannettuina. Jyväskylän Puustellista saa tarvittaessa keittiölle asennuspalvelun ja sisustuspalvelukin löytyy. Ville käy itse sitten muutamaa viikkoa ennen keittiön toimitusta meillä paikan päällä ottamassa tarkat mitat, jotta kalusteet istuvat todelliseen tilaan, eikä vain piirrustuksiin. Tilauksen yhteydessä saimme kalusteiden ja kodinkoneiden tarkat mitat, joten nyt päästään suunnittelemaan putkituksia, pistorasioiden paikkoja ja valaistusta.






Kuvassa Ville Pohjonen. Alla valintamme keittiön sekä kodinhoitohuoneen oviksi ja pöytätasoiksi.







lauantai 4. marraskuuta 2017

Reunan anatomia

Kerron tarkemmin, miten tuo talon paraatipuolen kuistin perustus toteutettiin. Tosiaan alkuperäisessä mallissa se on piirretty avokuistiksi, mutta meillä hautuu ajatus puolilämpimästä kuistista. Jätämme varauksen umpikuistille, koska sille meillä on enemmän käyttöarvoa. Siitä ei tule hirsirakenteinen, vaan hirsipaneloitu.



Aluksi kuitenkin teemme kustannussyistä avokuistin. Rakennusluvan puitteissa molemmat ovat mahdollisia, umpikuistiin päädyttäessä tosin täytynee ainakin ilmoitus tehdä, koska se vaikuttaa kiinteistöveron perusteena oleviin neliöihin. Olemme saaneet hyvin päätettyä isot asiat talossa, mutta tämä on ollut sellainen kohta, jota soudetaan ja huovataan. Rakennepiirrustuksetkin aiheuttivat hieman päänvaivaa, sillä valu olisi pitänyt suorittaa luultavasti kahdella tai kolmella erillisellä kerralla. Ensiksi sokkeli ja sitten laatta.

Soklex-muottien asentajan ja pääsuunnittelijamme kanssa pohdittiin rakennetta ja päädyttiin reunavahvistettuun laattaan. Reunavahvistettu laatta tarkoittaa laattaa, joka on yhtä ja samaa teräsbetonia sokkelin kanssa. Tuosta piirrettiin piirrustus ja toteutettiin Soklex-muoteilla siten, että muotin sisäreuna leikattiin laatan alapinnan korkeudelle. Kuistin etureunan muottia laskettiin pari senttiä alemmaksi, jotta laatalle saadaan pieni kaato. Valu tapahtui samalla kertaa samalla betonilla muun perustuksen kanssa. Valun yhteydessä reunaan muotoiltiin pieni porras, jotta hirren ulkoreuna ei jää suoraan laatalle lepäämään. 

Laatikossa on pohjalla hiekkaa, suodatinkangas ja sepeliä, sitten neljä kerrosta 50 millisiä XPS eristelevyjä ja raudoituksena 6 millistä raudoitusverkkoa 150 millimetrin silmällä. Kuvassa pilkistelee myös sininen radonputken pää, tosin tässä tapauksessa kyseessä on enemmänkin tuuletukseen ja kosteuden poistoon tarkoitettu putkitus. Putken ulkopuolinen pää jää rappusten alle suojaan ja piiloon. Laatan päälle tulee siis aluksi terassilaudat. Kun se joskus muutetaan puolilämpimäksi tilaksi, tilalle vaihdetaan lattialankut, joiden alle oli ajatus laittaa sähkölattialämmityskaapeli. Muualle taloon tulee kyllä vesikiertoinen lattialämmitys. Puolilämpimässä tilassa jäätymisen vaara on helpompi hallita sähkölämmityksellä, sillä tilaa ei välttämättä haluta talvella pitää jatkuvasti lämpimänä ja erillinen glygolikierto toisi lisää kustannuksia.